UNIFAMILIAR EN CIUDAD REAL
PROMOCIÓN 1 VIVIENDA
Calle Virgen del Prado, 2
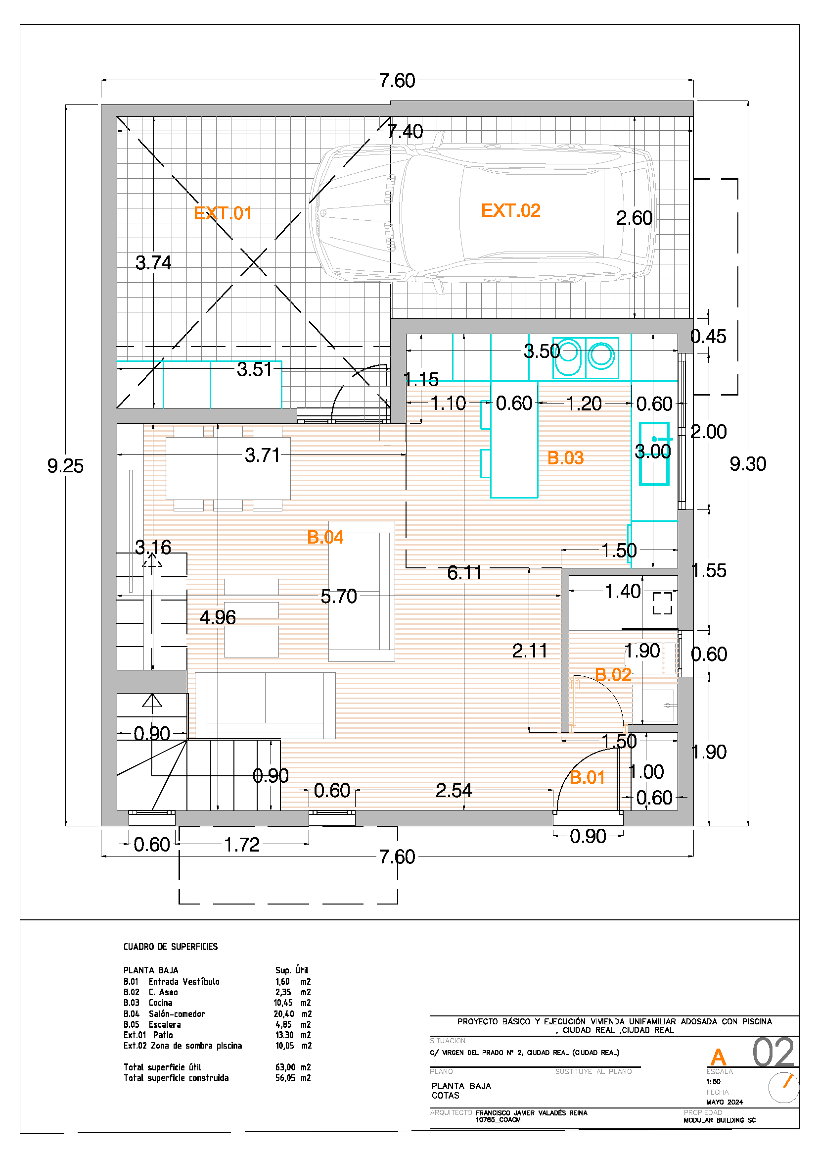
Plano Base Vivienda

Plano Planta 1 Vivienda

IMÁGENES










A 14 MINUTOS DEL CENTRO
Memoria de calidades
CIMENTACION:
* Solera de hormigón y zapatas con zunchos de hormigón armado según norma EHE, con placas de anclaje según normativa vigente y C.T.E. (Código Técnico de la Edificación), para su ejecución.
ESTRUCTURA:
*Autoportante de acero estructural superior compacta mediante entramado metálico tubular según normativa vigente y C.T.E.
CUBIERTA:
* Plana invertida impermeabilizada con lámina de PVC aislada exteriormente y con lana de roca ignifuga por la parte interna, consiguiendo así el doble aislamiento envolvente de gran eficiencia energética tanto térmica como acústica, cumpliendo al mismo tiempo la normativa vigente y C.T.E.
FACHADAS:
* Fachada ventilada con estructura de perfilaría metálica y placas compactas laminadas de fibrocemento ignifugas, en tono claro, sobre soporte-cerramiento de placa de doble chapa de acero y núcleo de poliestireno ignifugo de 3,5 cm., amarrado a la estructura.
* Aislamiento acústico-térmico de lana de roca ignifuga de 5 cm., al interior consiguiendo un doble aislamiento envolvente de gran eficiencia energética, tanto térmica como acústica cumpliendo la normativa y C.T.E.
TABIQUERIAS Y AISLAMIENTOS:
* De placas de yeso laminado en distribuciones interiores de vivienda y en trasdosado de cámaras de aislamiento.
* Separación de viviendas cumpliendo aislamiento térmico acústico vigente del Código Técnico de Edificación.
* Plancha lisa de escayola y/o placa rígida de yeso laminado en techos de todas las dependencias, siendo resistente al agua (antihumedad) en zonas húmedas de baños.
SOLADOS Y ALICATADOS:
* Solado con porcelánico tonos lisos o imitación madera de 120 cm x 23 cm, de 1ª calidad tanto en zonas húmedas como en el resto de la vivienda.
* Alicatados con porcelánico de 30 cm x 90 cm, de 1ª calidad en cocina y baños.
* Solado en terrazas y patios de gres de exteriores antideslizante de 1ª calidad.
CARPINTERIA INTERIOR:
* Puertas de paso en acabado blanco modelo lisas con líneas horizontales con manilla tipo inoxidable o similar.
* Puerta de seguridad en acceso a vivienda de doble chapa de acero, blanca o color, mirilla y tirador aislada, con terminación exterior similar a fachada.
CARPINTERIA EXTERIOR, VIDRIOS Y PERSIANAS:
* Carpintería exterior de PVC blanco de alto coeficiente de resistencia térmica y acústica, sellada y estanca, según Normativa vigente. Persianas con sistema monoblock de cajón de PVC compacto y lama de aluminio térmica con aislamiento inyectado en el interior.
* Acristalamiento general con vidrio aislante térmico doble de 4/16/4, tipo “Climalít” o similar, de baja transmisión térmica. Estanqueidad según normativas vigentes.
* Puerta de acceso para vehículos en garaje motorizada con apertura automática blanca.
PINTURAS:
* Pintura plástica lisa blanca o color de tonos suaves en paramentos verticales y horizontales.
INSTALACION ELECTRICA, TELECOMUNICACIONES Y CLIMATIZACION:
* De acuerdo al Reglamento Electrotécnico de Baja Tensión, con mecanismos Simón serie 31 o similar en color blanco.
* Cada vivienda estará dotada de tomas de teléfono y de televisión en salón y dormitorios. Tomas de fuerza para frigorífico, lavadora, lavavajillas, horno, placa y campana. Antena de RTT. Toma de RJ45 (datos) en salón y dormitorios. Sistema de video-portero en planta baja y telefonillo en planta alta.
*Instalación fotovoltaica de 1.500 w, aprox., para una reducción del consumo eléctrico de un 40% aprox., consiguiendo así una mayor eficiencia energética.
* Sistema de climatización mediante Aerotermia con suelo radiante-refrigerante con termostato programador en salón y dormitorios.
VENTILACION:
* Además de cumplir con lo especificado en el Código Técnico de Edificación, el sistema de ventilación será de doble flujo, contribuyendo de forma muy importante al ahorro y eficiencia energética de la vivienda.
INSTALACION DE FONTANERIA Y APARATOS SANITARIOS:
* Cumplimiento de la normativa vigente, con tomas para lavadora y lavavajillas.
* Aparatos sanitarios de porcelana vitrificada 1ª calidad en color blanco en todos los baños.
* Griferías cromadas con sistema monomando.
* ACS mediante termo eléctrico de alta eficiencia energética de 120 litros, aproximadamente.
La presente memoria de calidades es referida al proyecto básico de la edificación de la mencionada construcción, estando sometida, por motivos técnicos, jurídicos y existencias de los materiales citados, así como por normativas de obligado cumplimiento, a posibles cambios en acabados o sistemas por otros equivalentes definidos y supervisados, en su caso, por la Dirección Facultativa.
*NOTA: NO SE INCLUYE PISCINA.


